Skip to content
Lang: de
Locale: de_DE
Determined locale: de_DE
Textdomain global loaded: yes
Translation: MO – FR 8 bis 16:30 Uhr
+49 34 90 36 42 43
MO – FR 8 bis 16:30 Uhr
Downloads & Service
Shop
DE
  • FR
  • ES
  • EN
  • DE
Global -
  • Mobile Toiletten
    • Mobile Toiletten
    • Toilettentanks
    • Handwaschstände & Handwaschstationen
    • Transportanhänger
    • Zusatzprodukte & Ausstattung
  • Toilettenwagen & ­Sanitärmodule
    • Toilettenwagen
    • Festival
    • Bauwagen & Mobiles Büro
    • Dusch-Anhänger
    • Module
    • Transportanhänger
  • Entsorgungseinheiten
  • Sanitärkonzentrate
  • Unternehmen
    • Über Uns
    • Team
    • Produktion & Standorte
    • Stellenanzeigen
  • Kontakt
×

Home > Toilettenwagen & Sanitärmodule > GL4200 Mobile Schleuse

Toilettenwagen & Sanitärmodule

GL4200 Mobile Schleuse

· Mobile Hygieneschleuse für den Einsatz bei Großbränden, Asbestsanierungen, Gefahrstoff- oder Katastropheneinsätzen
· Konzipiert für die strikte Trennung von kontaminierter („schwarzer“) und sauberer („weißer“) Zone
· Robuster Anhängeraufbau für den flexiblen Einsatz vor Ort

Funktionsweise
· Zugang über den Schwarzbereich – hier erfolgt das Ablegen kontaminierter Kleidung über einen integrierten Wäscheeinwurf
· Anschließend Durchgang durch die integrierte Duschzone
· Verlassen der Schleuse über den Weißbereich – gereinigt und dekontaminiert

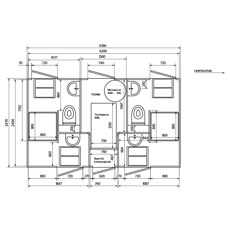
Ausstattung (je nach Ausführung)
· Mehrkammer-System: Schwarzbereich, Duschbereich, Weißbereich
· Wäscheeinwurf und separate Wäschekammer
· 2 Warmwasserduschen mit Mischarmaturen
· 2 Toiletten
· 4 Waschbecken
· Frischwassertank: 800 Liter
· Abwassertank: 1500 Liter
· Stromanschluss: 230 V / 16 A
· LED-Innenbeleuchtung und Belüftungssystem

Höhe innen
2150 mm
Höhe gesamt
2950 mm
Breite innen
2400 mm
Breite gesamt (inkl. Kotflflügel)
2470 mm
Länge innen
3200 mm
Länge gesamt (mit Deichsel)
4700 mm
zulässiges Gesamtgewicht
1400 kg
Kapazität Frischwasser
800 l
Kapazität Abwasser
1500 l
Stromanschluss
230 V, 16 A

Keine Konfigurationsdetails vorhanden.

Lieferung ab Werk Döbeln auf offenem Autotransporter oder Selbstabholung ab Werk Döbeln
Verfügbare Farben

Haben Sie eine Frage zu einem Produkt oder einen Sonderwunsch, bei dem Sie Hilfe benötigen?
Kontaktieren Sie uns!

Mailsales@glo-bal.de
Call+49 34 90 36 42 43

Unsere Weiteren Toilettenwagen & Sanitärmodule

GL2400 Fresh

GL2400 Fresh

GL2400 Free

GL2400 Free

GL2400 Badmobil

GL2400 Badmobil

GL2400 Duschmobil

GL2400 Duschmobil

GL2800 Tank

GL2800 Tank

GL2800 Vakuum

GL2800 Vakuum

logo

GLOBAL Kunststofftechnik
Am Wasserturm 2
06869 Coswig (Anhalt)
Deutschland

GLOBAL Fahrzeugtechnik
Zschepplitzer Str. 22
04720 Döbeln
Deutschland
Geschäftszeiten
Montag bis Freitag:
08:00 bis 16:30 Uhr

+49 3490364243
+49 3490362025
sales@glo-bal.de

Mobile Toiletten
Toilettentanks
Handwaschstände & -stationen
Transportanhänger
Zusatzprodukte & Ausstattung
Toilettenwagen & Sanitärmodule
Entsorgungseinheiten
Sanitärkonzentrate
Das Unternehmen
Über Uns
Team
Produktion & Standorte
Kontakt
youtube instagram facebook linkedin
© GLOBAL Fliegenschmidt 2025 | Impressum | Datenschutz
Downloads
Shop
  • Mobile Toiletten
    • Mobile Toiletten
    • Toilettentanks
    • Handwaschstände & Handwaschstationen
    • Transportanhänger
    • Zusatzprodukte & Ausstattung
  • Toilettenwagen & ­Sanitärmodule
    • Toilettenwagen
    • Festival
    • Bauwagen & Mobiles Büro
    • Dusch-Anhänger
    • Module
    • Transportanhänger
  • Entsorgungseinheiten
  • Sanitärkonzentrate
  • Unternehmen
    • Über Uns
    • Team
    • Produktion & Standorte
    • Stellenanzeigen
  • Kontakt
YouTube Instagram Facebook LinkedIn
×

Sprache wählen

  • FR
  • ES
  • EN
  • DE